Mike and Gay Franckowiak Home
Beaver Island Michigan

Proposed Addition & Remodel - 10/29/2001

[Home] [Floor Plans] [Elevations] [Model]

 

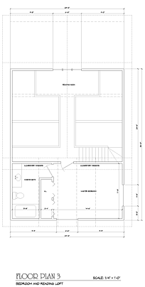
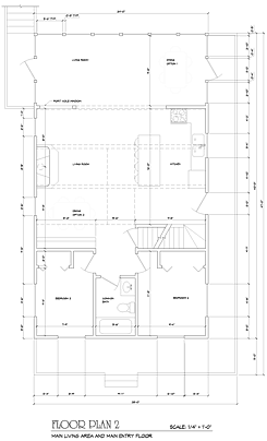
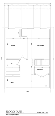
[Walkout Basement] [First Floor] [Second Floor]

 

click image for a larger view
 

click image for a larger view
 

click image for a larger view
 

click here for a PDF Version - Better for Printing and the ability to zoom
 

[Home] [Floor Plans] [Elevations] [Model]

 

[Walkout Basement] [First Floor] [Second Floor]