Mike and Gay Franckowiak HomeBeaver Island Michigan
Proposed Addition & Remodel - 11/08/2001
[Home] [Latest Drawings] [Animations] [Floor Plans] [Elevations] [Model]
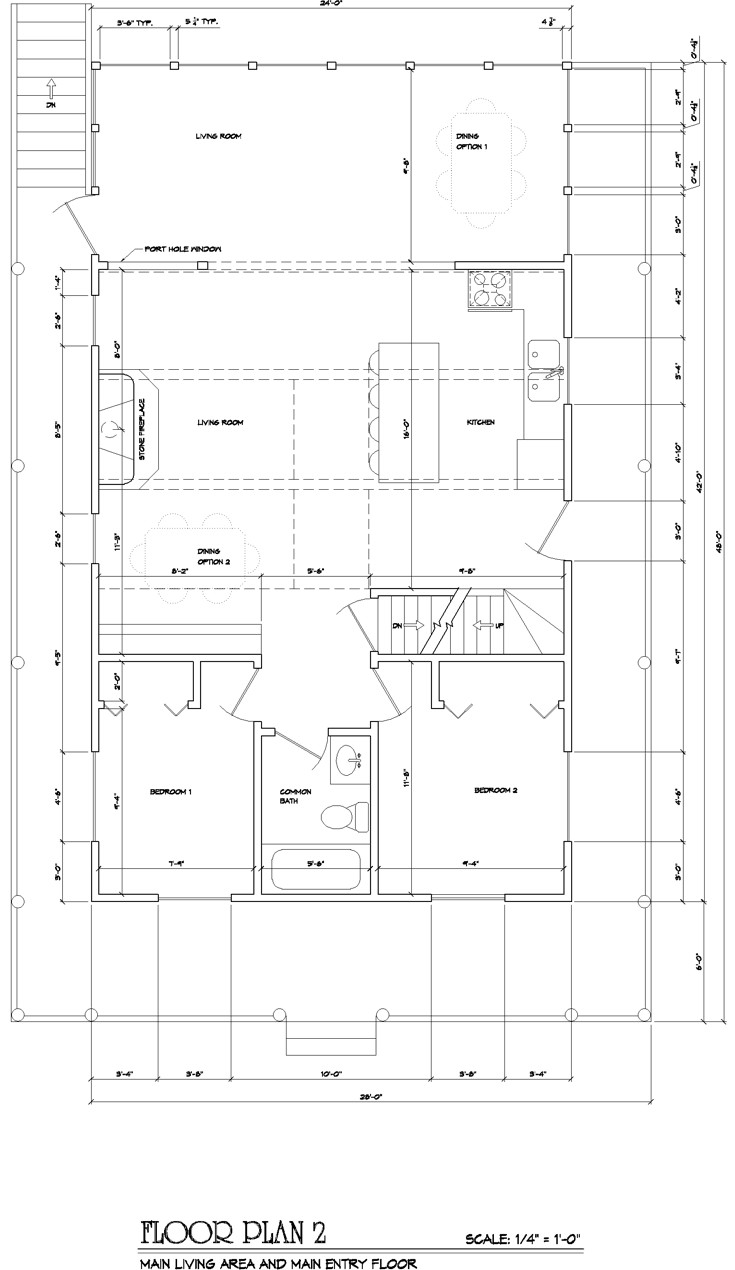
[Walkout Basement] [First Floor] [Second Floor]